Esgoto sanitário 
Depois de lançar todos os aparelhos hidráulicos necessários
ao projeto com os métodos já foi descritos no tópico
Distribuição de água, podemos iniciar o lançamento dos tubos e
conexões de esgoto. No ArchiStation® MEP, no
menu INSTALAÇÕES
►
Hidráulica, estão dispostos os comandos para o
lançamento dos tubos e conexões de esgoto sanitário.
Lançamento das tubulações de esgoto sanitário
O lançamento das tubulações poderá ser feito em qualquer um dos modos de visualização Em planta
BWC que será usando neste exemplo de lançamento
- Para criar a tubulação de esgoto:
- Vamos iniciar pelo
lançamento do esgoto primário. Selecione o aparelho hidráulico
Bacia sanitária. Marcações triangulares em laranja deverão
indicar os pontos de conexão disponíveis para início das
tubulações;

-
Clique sobre o triângulo laranja no ponto central do aparelho, onde se localiza a saída para o esgoto sanitário, para dar início ao lançamento da tubulação;
Observação: Quando uma tubulação de esgoto é iniciada a partir de um aparelho com a direção de saída apontando para o piso, um ponto será adicionado automaticamente levando a tubulação para o nível abaixo do piso.

Vista em perspectiva mostrando o ponto adicionado de forma automática para levar a tubulação ao nível abaixo do piso -
Preferencialmente, desative o assistente de
Alinhamento por
Objetos
pressionando a tecla de atalho
<F3> caso
esteja ligado. Isso evitará a captura de pontos indesejados e em
níveis diferentes;
-
Indique os pontos necessários para criar o caminho até onde deseja levar a tubulação;

-
Confirme o lançamento da tubulação clicando com o botão esquerdo do mouse ou pressionando a tecla <ENTER>;

A tubulação deverá ser criada com as devidas conexões e adicionada ao projeto.
Ralo sifonado
- Para adicionar um ralo sifonado:
- No menu INSTALAÇÕES
► Distribuição de água pressione o botão
Aparelhos hidráulicos
;
- Clique
sobre o ícone Abrir componentes de arquivo:

- Na coleção de "Aparelhos
hidráulicos", selecione o componente "Ralo sifonado 100x100x50"
e pressione OK para confirmar;

- Aproxime o cursor do mouse da posição aonde deseja
inserir o Ralo sifonado.

- Quando a previsão mostrar o componente na posição desejada,
confirme clicando com o botão do mouse.

- Definido o ponto de inserção, movimente o
mouse ao redor o componente para ajustar o Ângulo de orientação
da peça.
- Quando a previsão mostrar o componente no ângulo
desejado para o projeto, confirme clicando com o botão do mouse.

Os ralos estão agrupados na categoria Aparelhos hidráulicos pois captam a água proveniente do chuveiro e limpeza, possuindo assim Unidades Hunter de contribuição que devem ser contabilizadas no processo de cálculo das tubulações. Já as caixas sifonadas de passagem podem ser encontradas na categoria Conexões de esgoto.
- Para ligar ralo sifonado a tubulação primária:
- Selecione o Ralo sifonado. Marcações triangulares em
laranja deverão indicar os pontos de conexão disponíveis para
início das tubulações;

- Clique sobre o triângulo laranja respectivo a saída, de maior
diâmetro, para dar início ao lançamento da tubulação;

- Ative o assistente de
Alinhamento por Objetos
pressionando
a tecla de atalho <F3> caso esteja desligado para capturar as
tubulações existentes no projeto; - Aproxime o mouse do
ponto da tubulação primária aonde pretende conectar o ralo.

- Quando o assistente Alinhar
por objetos <F3> indicar com o sinal
a captura do ponto desejado na tubulação,
confirme clicando com o botão do mouse para iniciar o lançamento
da tubulação.

A tubulação primária será dividida em duas partes a partir do ponto indicado e no local será adicionada uma peça de conexão, se disponível, para conectar o ralo e a tubulação de ligação.
Ligando o Lavatório
- Para ligar o lavatório ao
ralo sifonado:
- Selecione o Lavatório. Marcações
triangulares em laranja deverão indicar os pontos de conexão
disponíveis para início das tubulações;
- Clique sobre o
triângulo laranja referente a captação de esgoto sanitário, para
dar início ao lançamento da tubulação;

- Para criar uma tubulação até o ralo, será
necessário a adição de pontos intermediários. Indique um ponto
alinhado com o eixo conforme indicado na figura abaixo;

- Agora, para capturar corretamente o alinhamento com
o ralo, coloque o cursor do mouse sobre a entrada
desejada e aguarda até aparecer o sinal de alinhamento
;

- O sinal de alinhamento
deverá permanecer visível até que o usuário indique um ponto.
Movimente o cursor do mouse até encontrar o ponto de alinhamento
em 45º entre as tubulações.

- Confirme a indicação do ponto no alinhamento clicando com o
botão do mouse.
- Aproxime o cursor do mouse da entrada do
Ralo sifonado;

- Quando o
assistente Alinhar por objetos <F3>
indicar com o sinal
a captura da tubulação, confirme clicando
com o botão do mouse;

A
tubulação deverá ser adicionada no projeto com todas as conexões
necessárias.
Coluna de ventilação
- Para criar uma coluna de ventilação:
- No menu INSTALAÇÕES
► Esgoto sanitário pressione o botão
Tubos
; - Selecione o diâmetro do tudo de
ventilação desejado, normalmente 50 mm;

- Ative o assistente de
Alinhamento por Objetos
pressionando a tecla
de atalho <F3> caso esteja desligado para capturar as tubulações
existentes no projeto; - Aproxime o mouse do ponto da
tubulação aonde pretende conectar a coluna de ventilação.

- Quando o assistente
Alinhar por objetos <F3>
indicar com o sinal
a captura do ponto desejado na tubulação,
confirme clicando com o botão do mouse para iniciar o lançamento
da tubulação; - No Inspetor de Objetos <F11>
clique
sobre o comando Subir/Coluna de ventilação
.

A tubulação será criada e a indicação de coluna de ventição será adicionada ao projeto.
Outra forma de ventilar a tubulação, mais comum em
projetos com múltiplos pavimentos, seria criar uma tubulação a
partir da ligação entre o ralo sifonado e o esgoto primário.
Conforme mostrado na imagem abaixo.

O processo de lançamento seria bem similar:
- No menu INSTALAÇÕES ►
Esgoto sanitário pressione o botão
Tubos
; - Selecione o
diâmetro do tudo de ventilação desejado, normalmente
50 mm;
- Aproxime o mouse do ponto da tubulação desejado do ramal
entre o ralo sifonado e o esgoto primário.
- Quando o assistente
Alinhar por objetos <F3> indicar com o sinal
a captura do ponto desejado na
tubulação, confirme clicando com o botão do mouse para iniciar o
lançamento da tubulação; - Indique todos os pontos
necessários até chegar ao local da coluna de ventilação.

- No Inspetor de Objetos
<F11> clique sobre o comando
Subir/Coluna de ventilação
.
Definindo Tubos de queda
Da
mesma forma, para criar a tubulação primária em edifício com
múltiplos pavimentos, ao invés de levar a tubulação para o lado
externo da edificação, no momento do lançamento da tubulação,
utilize o comando do Descer/Tubo de Queda
localizado no Inspetor de Objetos <F11> para criar uma coluna de
queda no último ponto indicado.
Alterando a posição da indicação de uma tubulação
A indicação da tubulação é
feita inicialmente pelo ponto central da projeção em planta da
tubulação. No entanto, em alguns casos, pode ser necessário
reposicionar para evitar sobreposição com outros elementos,
textos ou indicações do projeto.
- Para
alterar a posição da indicação de uma tubulação:
- Selecione a tubulação desejada. Triângulos na cor cinza deverão
aparecer na posição da indicação;

- Clique sobre o triângulo cinza para alterar a posição
da indicação;
- Indique um ponto para a nova posição da
indicação.

Caso indique um
ponto próximo da tubulação, a indicação será desenhada
acompanhando o ângulo do trecho da tubulação no ponto indicado. Se o ponto for a uma certa distância da tubulação, será criada
uma linha de chamada para a indicação.
Para retornar a
indicação ao modo inicial, selecione a tubulação e nas
propriedades do Inspetor de objetos <F11> marque a caixa com a
opção Ajustar indicação.
Caixa de inspeção
- Para adicionar uma caixa de inspeção:
- No menu INSTALAÇÕES ► Esgoto sanitário
pressione o botão Caixas e
conexões
;
- Clique sobre o ícone Abrir componentes de arquivo:

- Na coleção de "Conexões
de esgoto - caixas, tanques e acessórios", selecione o
componente "Caixa de inspeção em blocos de concreto" e pressione
OK para confirmar;

- Aproxime o cursor do mouse da posição aonde deseja inserir a
Caixa de inspeção. Caso houver uma tubulação próxima, o sistema
irá alinhar a tubulação mais próxima da caixa com a tubulação
existente no projeto.

A
seta mostra o ponto de conexão entre a tubulação existente no
projeto com a caixa de inspeção.
Caixa de gordura
A inserção da caixa de gordura é similar a das caixas de inspeção. A biblioteca possui diversos tipos e tamanhos de caixas de gordura.
- No menu INSTALAÇÕES ► Esgoto sanitário pressione o botão
Caixas e conexões
;
- Clique sobre o ícone Abrir
componentes de arquivo;
- Na coleção de "Conexões de esgoto
- caixas, tanques e acessórios", selecione a caixa de gordura
pressione OK para confirmar;

- Aproxime o cursor do mouse da
posição aonde deseja inserir a Caixa de gordura. Caso houver uma
tubulação próxima, o sistema irá alinhar a tubulação mais
próxima da caixa com a tubulação existente no projeto.
Conectando tubulações
Eventualmente, durante o lançamento das
tubulações, pode ser necessário unir duas tubulações
desconectadas. O comando Conectar tubulações poderá ser
utilizado para realizar a junção de forma automática.
- Para conectar duas tubulações:
- Ative o comando Conectar utilizando uma das seguintes formas:

Clique sobre a seta do ícone Aparelhos hidráulicos e no menu selecione o item Conectar tubulações;
Ou utilize o atalho pelo teclado digitando F <ESPAÇO>;
Ou a partir do menu DESENHO ► Modificar clique sobre o o ícone Conectar► Unir
. - Clique sobre as
extremidades das tubulações que deseja conectar;

As tubulações serão unidas pelo ponto de interseção.

Se as tubulações estiverem em diferentes cotas de nível, será criado um trecho adicional de tubulação para ligar as tubulações entre os dois níveis.

Ligação com a rede coletora
- Selecione a Caixa de
inspeção. Marcações triangulares em laranja deverão indicar os
pontos de conexão disponíveis para início das tubulações;

- Clique sobre o triângulo
laranja no ponto onde pretende sair com com a tubulação
destinada a conexão com a rede coletora, Será iniciado o
processo de lançamento da tubulação.

- Caso ligado, desative o assistente de
Alinhamento por objetos
pressionando a tecla de atalho <F3>. para avitar a captura de
pontos indesejados em outros níveis. - Indique todos os
pontos necessários para criar o caminho até a junção com a rede
coletora. Esse ponto deverá ser próximo ao alinhamento predial,
sobre o passeio. Verifique as normas de sua operadora.

- Quando indicar o último
ponto, o local de ligação, confirme o lançamento da tubulação clicando o botão direito do mouse ou pressionando a tecla
<ENTER>.
- No menu INSTALAÇÕES ►
Esgoto sanitário pressione o botão
Caixas e conexões
; - Clique sobre o ícone Abrir
componentes de arquivo;
- Na coleção de "Conexões de esgoto
- caixas, tanques e acessórios", selecione o componente "Ligação
rede de esgoto" e pressione
OK para confirmar;

Este componente contém o TIL de ligação.
- Aproxime o cursor do mouse da tubulação de ligação com a
rede coletora;

- Quando
a seta do componente estiver apontando a direção de saída do
esgoto, confirme clicando com o botão do mouse.
Sistemas de tratamento
Caso a região da edificação não
possua sistema de coleta e tratamento de esgoto, o sistema
possui em sua biblioteca componentes que podem ser utilizados
para montagem de um sistema de tratamento no local. Contando com
Fossas sépticas e filtros anaeróbios de diversos tipos e
tamanhos. Também conta com um componente "Sumidouro" para
destinação final.
O método de inserção dos componentes de
tratamento de esgoto é igual a inserção das caixas de inspeção e
gordura.
Caso seu projeto necessite algum componente ou
sistema que não esteja relacionado na biblioteca, por favor,
entre em contato para verificarmos a viabilidade de
implementação.
Criando a Planta de Esgoto sanitário
Depois de adicionar todos as unidades de ar condicionado previstas no projeto, chegou a hora de criar as pranchas do projeto de Instalações hidráulicas.
- Clique sobre a aba
PROJETO para abrir o
Gerenciador de projeto;
- Com o botão
direito do mouse clique sobre o item da disciplina
Hidráulica;

- No menu, selecione o
item Esgoto sanitário;
- Torne corrente o pavimento desejado
e indique dois pontos para determinar o retângulo de abrangência
da planta baixa;

A
definição de planta de Esgoto sanitário deverá ser criada e
aparecer na relação de itens do Gerenciador de projetos.
Repita o processo para criar a planta de esgoto sanitário dos
demais pavimentos da edificação.
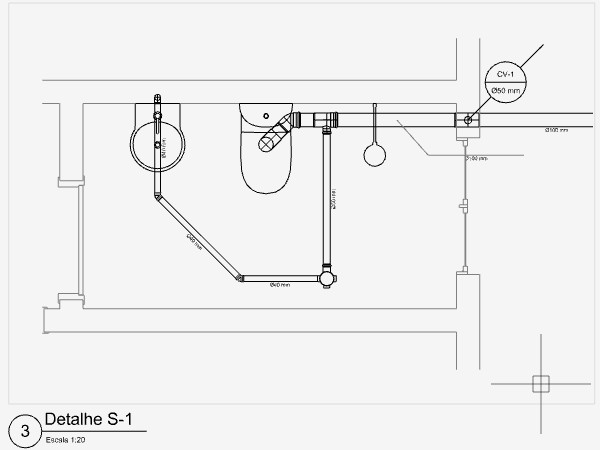
Criando Detalhes de esgoto sanitário
Em um projeto hidráulico é importante criar
detalhes das instalações de esgoto sanitário em maior escala
maior. O sistema poderá criar os detalhes automaticamente a
partir da indicação de um retângulo de abrangência.

Exemplo de Detalhe de esgoto
sanitário
- Para criar um Detalhe de
esgoto sanitário:
- Clique sobre a aba PROJETO para
abrir o Gerenciador de projeto;
- Com o botão direito do
mouse clique sobre o item da disciplina
Hidráulica;
- No
menu, selecione o item Detalhe de esgoto sanitário;
- Torne
corrente o pavimento desejado e indique dois pontos para
determinar o retângulo de abrangência para o detalhe.

A definição do Detalhe de esgoto sanitário deverá ser criada e aparecer na relação de itens do Gerenciador de projetos. Repita o processo para criar todos os detalhes necessários ao projeto. Ao gerar a Planta de Esgoto sanitário os Detalhes deverão ser indicados com sua respectiva numeração.
Adicionando os desenhos as
pranchas do projeto hidráulico/h3>
- PPara
adicionar os desenhos as pranchas do projeto:
- Alterne para o modo
Pranchas do projeto
;
- No Gerenciador de projetos, expanda o item da disciplina
Hidráulica;
- Clique sobre "Esgoto sanitário" e mantendo o
botão do mouse pressionado arraste para o projeto. A planta será
gerada;
- Indique um ponto para definir o local para
inserção;

- Repita
o processo para inserir todas as demais plantas e detalhes
definidos para o projeto hidráulico;
Detalhes de
instalações prontos para o projeto

O sistema oferece ao
projetista alguns detalhes de instalações na forma de blocos
prontos para serem inseridos no projeto.
- Para inserir um detalhe:
- Clique sobre a aba PROJETO
para abrir o Gerenciador de projeto;
- Com o botão direito
do mouse clique sobre o item da disciplina
Hidráulica;

- No menu, selecione o
item Detalhes...;
- Selecione o detalhe desejado e pressione
OK para inserir nas pranchas do projeto.
Tabelas de quantidades e legendas
Já estão configuradas tabelas com
símbolos e quantidades para Aparelhos hidráulicos,
Tubulações e
Conexões de esgoto.

Exemplo de tabelas de Conexões e Tubulações de esgoto com
simbologia
- Para criar as tabelas de quantidades e legendas de Hidráulica:
- No
Gerenciador de projetos, clique com o botão direito do mouse
sobre o item da disciplina Hidráulica;
- No menu, selecione
o item Tabela de Conexões de esgoto. A tabela deverá aparecer na
relação de tabelas;
- No modo Pranchas do
projeto
, selecione a tabela do
Gerenciador de
projetos e arraste para a prancha. - Repita o processo para
criar e inserir no projeto a tabela de
Tubulações de esgoto;
Orçamentos
Cada equipamento ou
tubulação deverá estar associado a uma composição de custos
vínculada aos respectivos códigos SINAPI. Caso o componente
ainda não possua uma composição associada, ou não possua um
código SINAPI, ao gerar o orçamento o usuário será informado.
Exportação IFC
- Para exportar
a disciplina para um arquivo IFC:
- Clique sobre a aba PROJETO para abrir o Gerenciador de projeto;
- Com o botão direito do mouse clique sobre o item da disciplina Hidráulica;
- No menu selecione o item "Exportar IFC...";
- Na janela Exportar disciplina para... selecione a pasta, especifique o nome para o arquivo e clique sobre o botão OK.
Tópicos relacionados:
